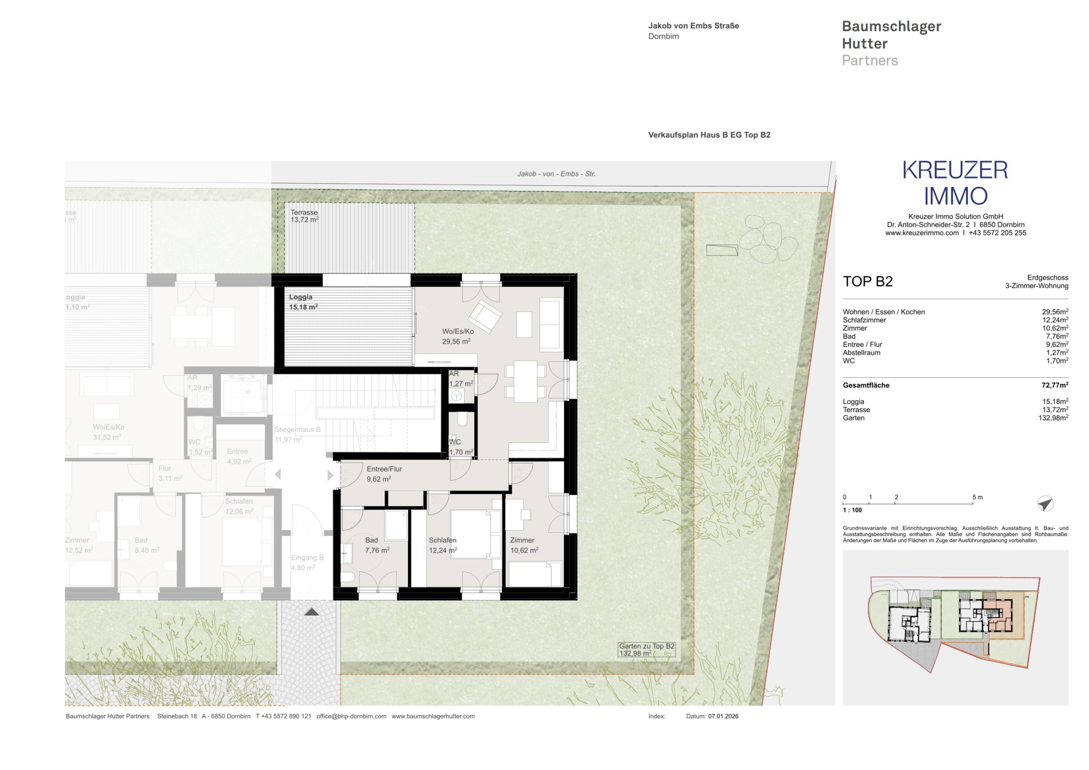
Haus B – Top B2
Jakob von Embs steht für mordernes Wohnen mit einem klaren Ziel: Lebensqualität neu denken!
Dornbirn

Grundriss
Lageplan
Karte
Wohnbau · zum Kauf
Die Pläne liegen vor
bool(true)
in Planung

3-Zimmer-Wohnung mit großzügigem Garten und Terrasse

Jakob von Embs steht für mordernes Wohnen mit einem klaren Ziel: Lebensqualität neu denken!, Haus B – Top B2

Top B2 befindet sich im EG von Haus B. Diese 3-Zimmer-Wohnung mit großem Garten wird Ihren Wünschen entsprechend geplant errichtet.

Auf einen Blick
  • Erdgeschoss
  • 3 Zimmer
  • 73 m² Wohnfläche
  • 187 m² überdachte Terrasse und Garten
  • Die Pläne liegen vor
  • Top B2 - frei einteilbare Wohnung mit knapp 73 m² Wohnfläche plus überdachter Terrasse und großem Garten
  • sonnige, sehr ruhige und sehr sichere Wohngegend
  • nur wenige Wohnungen
  • raumhohe Holzfenster mit 3-Scheiben-Isolierverglasung, die eine lichtdurchflutete, naturnahe und weitläufige Wohnatmosphäre schaffen
  • Fernwärme sorgt für eine wohlige Wärme im Winter
  • Kühlung im Sommer
  • hochwertige Sanitärausstattung
  • Echtholz-Dielenparkett
  • die Wohnung im Erdgeschoss mit dem großzügig gestalteten Garten liegt ca. 1,40m über dem Niveau der Jakob-von-Embs-Straße, einer Sackgasse
  • Raumhöhe 2,63 m
  • in nur 7 Gehminuten am Dornbirner Marktplatz
  • Ihr neuer Lebens- und Rückzugsort im Grünen
  • nur 6-7 Wohnungen
Kaufpreis
€ 616.000
Tiefgaragenplatz
€ 27.000,–
zzgl. Nebenkosten
3,5 % Grunderwerbssteuer
1,1 % Grundbucheintragungsgebühr
1,5 % Vertragserrichtung- und Treuhandskosten
Ausstattung & Komfort
Fernwärme
Bauweise Massiv
Photovoltaikanlage
Lift
Hochwertige Sanitärausstattung
Holzfenster
Hochwertiger Holzparkett
Modernes Fliesendesign
Bad mit Fenster
Loggia
Terrasse
Garten
Vorbereitung E-Ladestation
Kabelanschluss

Interesse geweckt?

Vereinbaren Sie ein persönliches Gespräch oder fordern Sie detaillierte Unterlagen an.
Anfrage

Ich bin interessiert an

    Vielen Dank!

    Wir werden uns baldmöglichst bei Ihnen melden.


    Weitere Wohnungen

    Datenschutz-Übersicht

    Diese Website verwendet Cookies, damit wir Ihnen die bestmögliche Benutzererfahrung bieten können. Cookie-Informationen werden in Ihrem Browser gespeichert und führen unterschiedlichste Funktionen aus. Hier finden Sie unseren Datenschutz im Detail.

    Unbedingt notwendige Cookies

    Unbedingt notwendige Cookies sollten jederzeit aktiviert sein, damit wir Ihre Einstellungen für die Cookie-Einstellungen speichern können.

    Drittanbieter-Cookies

    Diese Website verwendet Google Dienste, um interaktive Karten anzuzeigen. Mit der Verwendung der Dienste können persönliche Daten wie z.B. Ihre IP-Adresse an Google übertragen werden.